Equipements scolaires
Ecole de la Vignettaz Fribourg (CH)
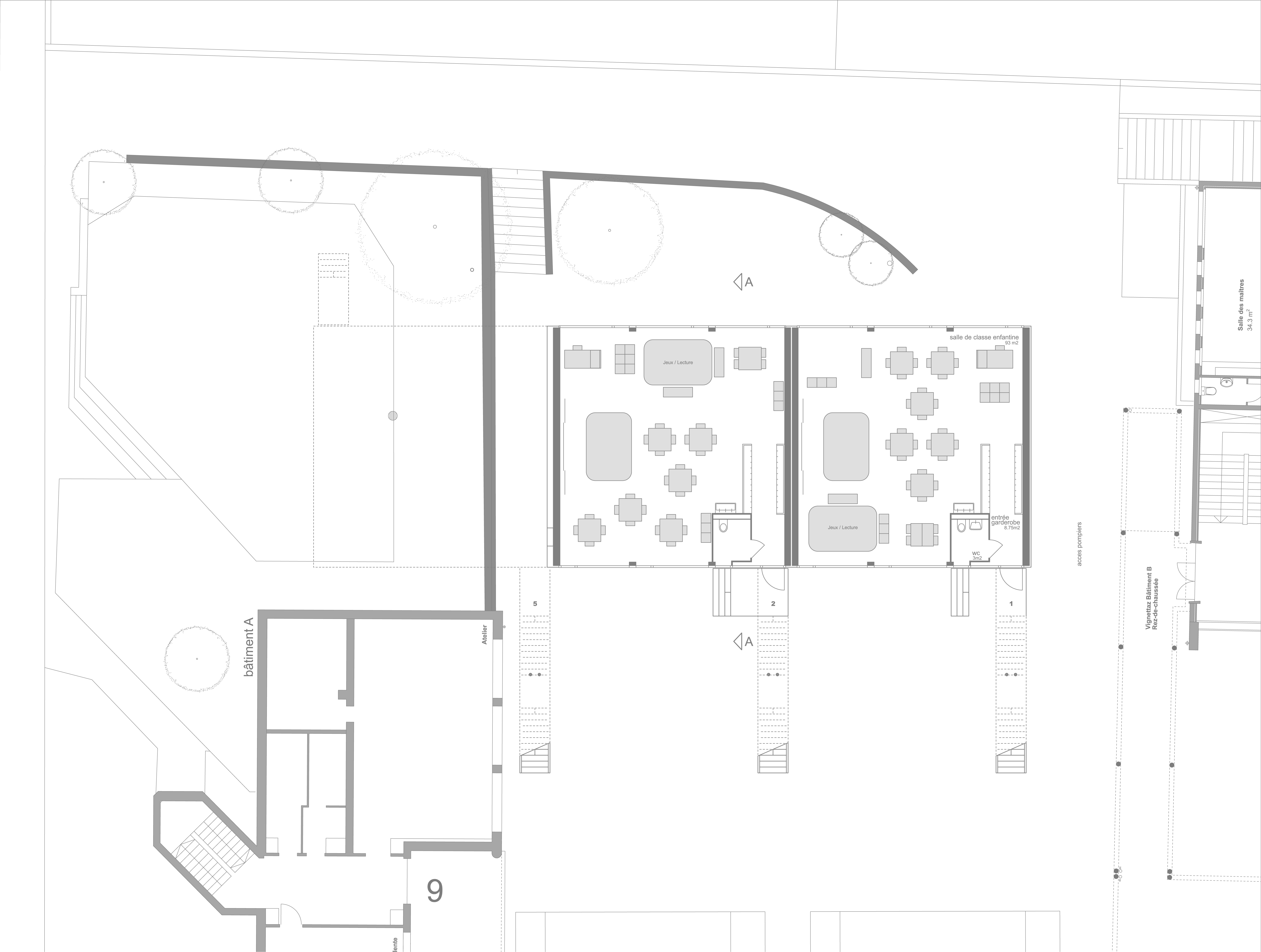
5 Pavillons scolaires provisoires en bois
Maître d'ouvrage: Ville de Fribourg
Planification/Réalisation 2013-2014: mullerarchitecte Sàrl & mazzapokora GmbH
Dans l’intervalle de la construction des nouvelles écoles rendues nécessaires par une forte croissance démographique, la Ville de Fribourg opte en 2013 pour la réalisation de pavillons scolaires provisoires.
Les bureaux mullerarchitecte et mazzapokora développent le système modulable multi sites ‘’Frimodule’’ permettant diverses affectations en salles de classes enfantines, primaires, du CO ou d’accueils extra-scolaire.
La forme carrée retenue permet de multiples arrangements horizontaux et verticaux.
Attribué au développement durable et à la souplesse de son utilisation, le choix du matériau de construction s’est rapidement tourné vers le bois. Réalisés par éléments, démontables et réutilisables, les pavillons d’une surface de 100m2 comprennent une entrée, garde-robe et les installations sanitaires nécessaires à une autonomie propre à chaque module. Deux parois massives et deux parois vitrées définissent un espace simple doté d’une grande qualité lumineuse. La ventilation naturelle s’effectue par les ouvrants équipés en partie de grillages de protection pluie, évitant ainsi les techniques sophistiquées et coûteuses de ventilation artificielle. La protection solaire est assurée par des stores toiles à projection à l’italienne.
Les structures porteuses et les cloisons intérieures en bois sont traitées avec une lasure blanche et grise.
Un espace neutre et calme permet d’accueillir les enfants avec leurs meubles, leurs jeux et dessins colorés.
Le caractère provisoire des pavillons se traduit par le choix des matériaux et leurs traitements de surfaces, à l’intérieur comme à l’extérieur. La peau formée de panneaux ondulés en polycarbonate avec fibres de verre et une simple toiture froide à deux pans protègent les éléments constructifs.
Suivant le développement du projet, le concours en procédure sélective pour prestations d’entreprise générales a permis le choix du partenaire et de son savoir-faire pour la réalisation.
Photographe Roland Bernath
Bulletin Bois 118

PRIX /DISTINCTION : Mention - Région Ouest