Equipements scolaires

Ecole du Botzet Fribourg (CH)

Maître d'ouvrage: Ville de Fribourg

Concours 2011 : mazzapokora Sàrl Zürich

Planification/Réalisation 2012-2013: mazzapokora Sàrl & mullerarchitecte Sàrl

La situation préalable au projet avec deux bâtiments définissait un espace extérieur généreux et intime, légèrement surélevé et retiré depuis la rue. Les deux nouveaux volumes se positionnent l’un par rapport à l’autre et cadrent le préau de manière équilibré. L’agrandissement de l’école apporte une solution en respect de la situation antérieure, sans la détruire, au contraire, l’enrichi et la renforce. La nouvelle intervention propose une réorganisation et une précision de l’espace extérieur tout en maintenant l’importance des volumes existants. Elle se limite en hauteur et crée un niveau de référence cherchant plutôt une ligne horizontale depuis laquelle s’élève l’ancienne partie. Sans toucher les volumes actuels, les deux nouvelles constructions pavillonnaires subdivisent le préau définissant deux places. Elles sont à la fois tenues par un ancien volume et par un nouveau, ainsi que par le bâtiment voisin pour la première place et un mur délimitant la parcelle à l’est pour la deuxième. Ce positionnement souligne la morphologie du lieu et du quartier dans laquelle les bâtiments solitaires composent le vide et se tiennent en balance.

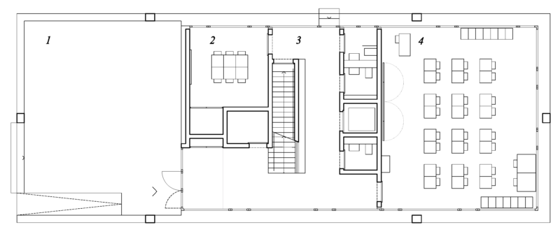
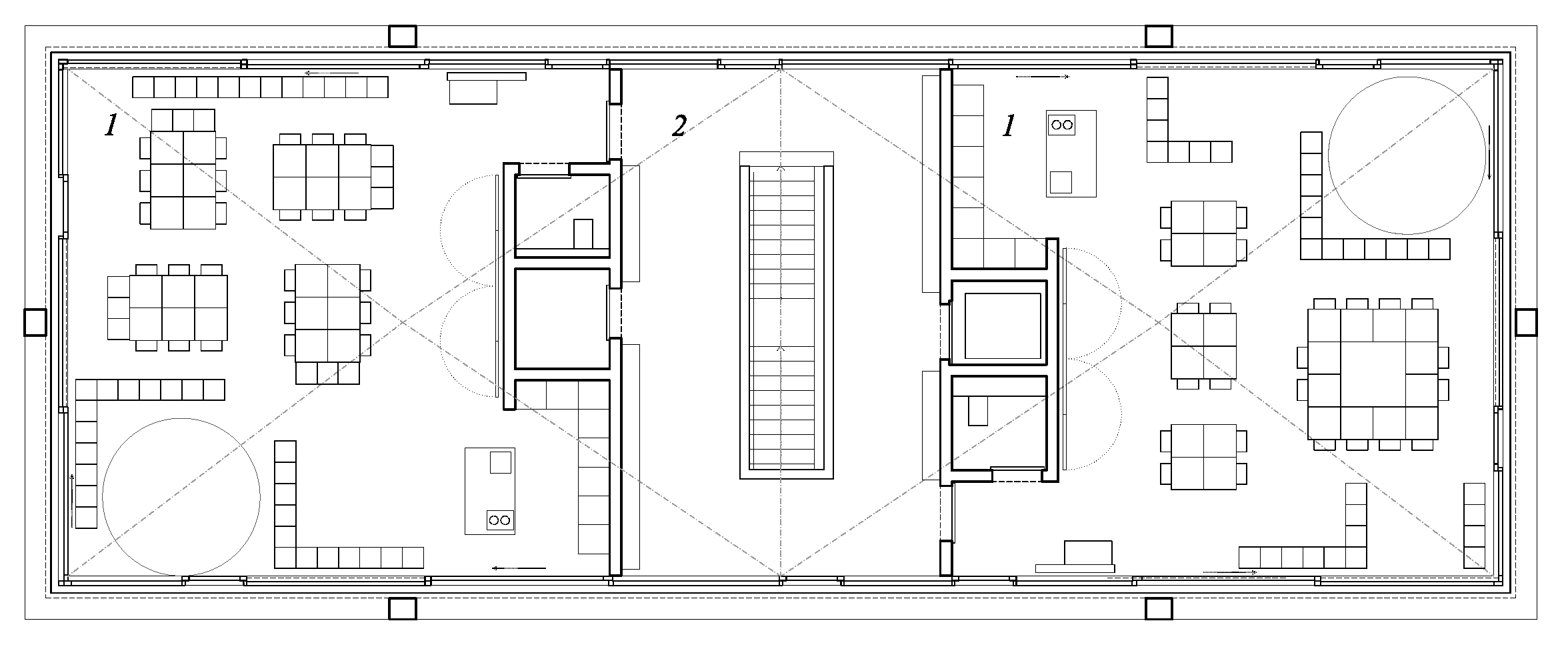
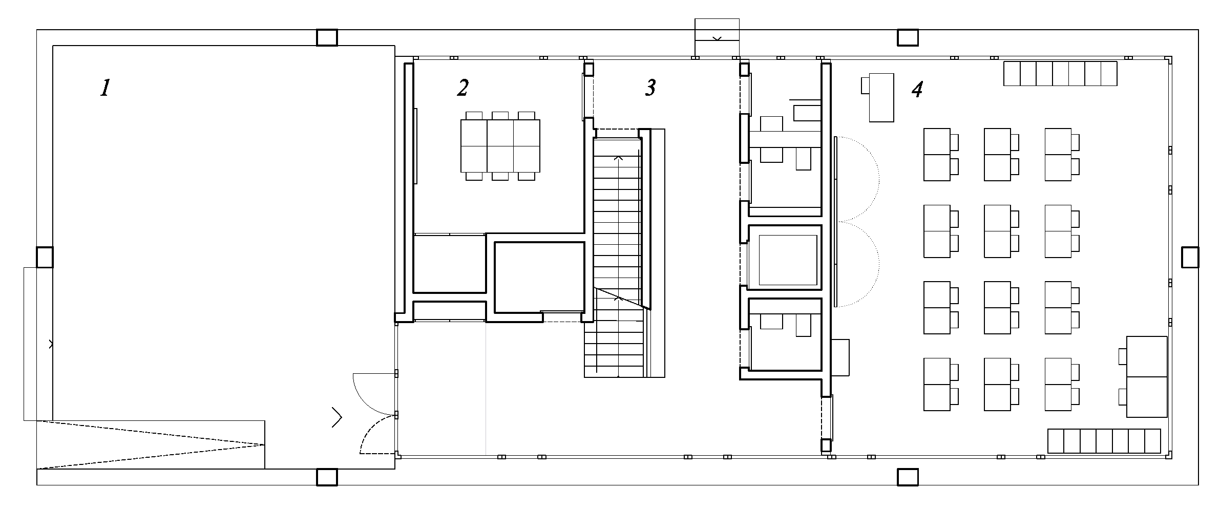
A l’image d’un pavillon les deux nouveaux bâtiments sont disposés et organisés de manière simple, avec une orientation facile pour les utilisateurs et une illumination généreuse. Les constructions sur deux niveaux (et un sous-sol minimal) tiennent les salles de classe de part et d’autre, accessibles depuis le foyer central. Au rez-de-chaussée un parvis couvert accueille les enfants et offre un espace extérieur abrité.

Construction en béton apparent, teinté pour les façades.

Etage suspendu en façade au moyen de tiges métalliques

Photographe

Roland Bernath

Jérôme Humbert

Map_Ecole du Botzet, Fribourg